Wieszak belki ciężki ocynkowany do belek 7,5 x 17,5 cm - za sztukę
Sprawdź poniżej nasze rabaty ilościowe:
Dlaczego warto wybrać Wieszak belki ciężki ocynkowany do belek 7,5 x 17,5 cm - za sztukę?
- Konkurencyjna cena
- Bardzo mocny
- 43 poręcznych otworów na śruby
Wieszak belki ciężki ocynkowany do belek 7,5 x 17,5 cm - za sztukę
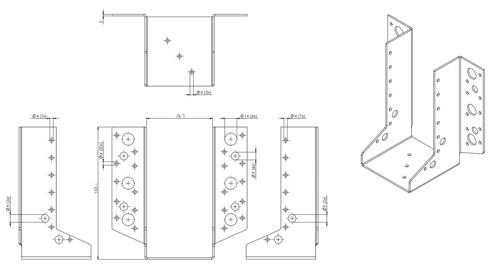
Wieszak belki krokwi nadaje się do montażu belek 75 x 175 mm. Wieszaki belek wykonane są ze stali ocynkowanej i mają co najmniej 2 mm grubości, dzięki czemu są bardzo mocne. 43 otwory na wkręty sprawiają, że wieszak ten jest bardzo łatwy w montażu. Znak CE oznacza, że wsporniki spełniają wymagania prawne w zakresie bezpieczeństwa, zdrowia i środowiska. Zalecamy zastosowanie naszych wkrętów do płyt wiórowych ze stali nierdzewnej 410 lub ocynkowanych.
Montaż wieszaków belek
Wieszaki belek firmy Wovar są przystosowane do mocno obciążonych poprzeczek. Wewnętrzny rozmiar netto tego wspornika wynosi 75 x 112,5 mm. Czy montujesz wieszak na powierzchniach kamiennych lub betonowych? W takim razie konieczne jest wstępne nawiercenie. Oznaczanie odbywa się po prostu poprzez przytrzymanie wieszaka w odpowiednim miejscu i za pomocą ołówka zaznaczenie otworów na wkręty. Następnie można usunąć wieszak i można wiercić. Ponieważ stojaki wykonane są ze stali ocynkowanej, ważne jest, aby nie uległy uszkodzeniu. Zapobiegnie to utlenianiu się wieszaka.
Jak mocny jest ten wieszak belki?
Poniższy wykres przedstawia nośność wsporników belki firmy Wovar. Na poniższym rysunku widać, jak siły są oznaczane za pomocą skrótów. DR oznacza nośność w dół, DW - nośność w bok, a T - obciążenie od belki lub ściany. Nośność wieszaków belek krokwiowych Wovar, zależy od materiału mocującego. Przy zastosowaniu gwoździ nośność jest mniejsza niż przy zastosowaniu wkrętów. Dlatego zawsze zalecamy stosowanie wkrętów. Nośność sprawdzono przy użyciu łącznie 34 ocynkowanych wkrętów 5 x 35 mm. Zalecamy stosowanie wkrętów o grubości co najmniej 4,0 mm. Nośność przy mocowaniu za pomocą gwoździ została sprawdzona przy użyciu 34 gwintowanych gwoździ 4 x 40 mm.
| Mocowanie | z Gwoździami | z Wkrętami |
| DR | 1062 KG | 4084 KG |
| DW | 1836 KG | 4504 KG |
| T | 130 KG | 3153 KG |
Nośność podana w tabeli dotyczy połączeń typu T z drewna na drewno. Do mocowania za pomocą wkrętów zalecamy stosowanie wkrętów o grubości co najmniej 4,0 mm*
Kup ocynkowane wieszaki belki krokwi do belek 7,5 x 17,5 cm
Zamów te niezawodne wsporniki belki krokwi w Wovar w niezwykle konkurencyjnych cenach. Zamów większą ilość i skorzystaj z naszego atrakcyjnego rabatu ilościowego. Ogrodnicy, firmy budowlane, majsterkowicze, sprzedawcy drewna, otrzymują dodatkowe korzyści w Wovar jak zniżki wraz z założonym u nas kontem biznesowym.
Czy ten wspornik belki krokwi nie jest tym, czego szukasz? Tutaj można obejrzeć cały nasz asortyment uchwytów do belek oraz wieszaków belek. Czy budujesz zadaszenie? Użyj naszych ocynkowanych wkrętów z łbem stożkowym.
Specyfikacja produktu
| Marka | Wovar |
|---|---|
| Numer artykułu | WV004979 |
| Kod EAN | 8719747477052 |
| Cecha charakterystyczna 1 | Znak CE |
| Cecha charakterystyczna 2 | Wymiary netto: 75 x 152,5 |
| Rodzaj | Wieszaki belek (krokwi) |
| Wymiary | 75 x 175 mm |
| Materiał | Stal ocynkowana |
| Regulowany | Nie |
| Szerokość | 7.50 cm |
| Rozmiar belki | 7.5 x 17.5 cm |
| Wielkość netto | 7.5 x 15.25 cm |
| Znak jakości CE | Tak |












